Nos preocupa tu privacidad En pisos.com utilizamos cookies propias y de terceros para dar un servicio satisfactorio mediante cookies técnicas, de personalización y para fines analíticos. pulsa AQUÍ para más información. Puedes aceptar todas las cookis pulsando el botón "aceptar" o configurarlas o rechazar su uso pulsando
Aceptar Rechazar todas Configurar
Local comercial en alquiler en Gràcia
  • 450 m2
3.500 €/mes

Local comercial en alquiler en Gràcia

(Gràcia. Sabadell)

REF.: 021369 3.500 €/mes
Contactar ahora
Contactar ahora 937484848
call
Llamar
email
Contactar
call
Llamar
email
Contactar
Detalles del inmueble
  • Precio 3.500 €/mes
  • Referencia 021369
  • Dirección Carretera Barcelona, 26
  • Zona Gràcia -
  • Planta Bajo
  • Superficie total 450 m2
  • Superficie solar 350 m2
  • Superficie útil 450 m2
  • Certificación energética
    Clasificación Exento
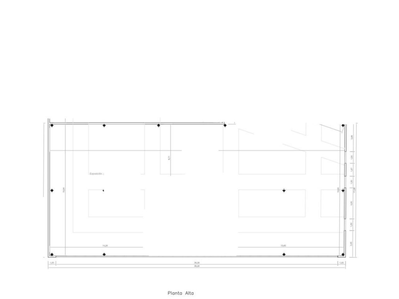
  • Descripción Fincamps comercializa impresionante local con altillo .

    Local esquinero, con una superficie de 181 m² con 11 m lineales de cristalera por cada lado , acceso en su parte posterior a un aparcamiento que da la la vez a la calle trasera del edificio con una puerta con persiana de gran tamaño , ( 4m x 4m ) y a la vez acceso al altillo con una altura máxima por la parte posterior de 5,8 metros , al altillo se accede por una escalera interior desde el local
    -Planta primera altillo almacén de 301 m
    No deje la oportunidad de ver este fantástico local con altillo en Sabadell .


Dirección

Carretera Barcelona, 26
Gràcia

Teléfono

937484848

Fax

93 748 01 33

Email

recepcio@fincamps.com

Formulario de contacto

Enviar

Simula tu hipoteca

Calcular